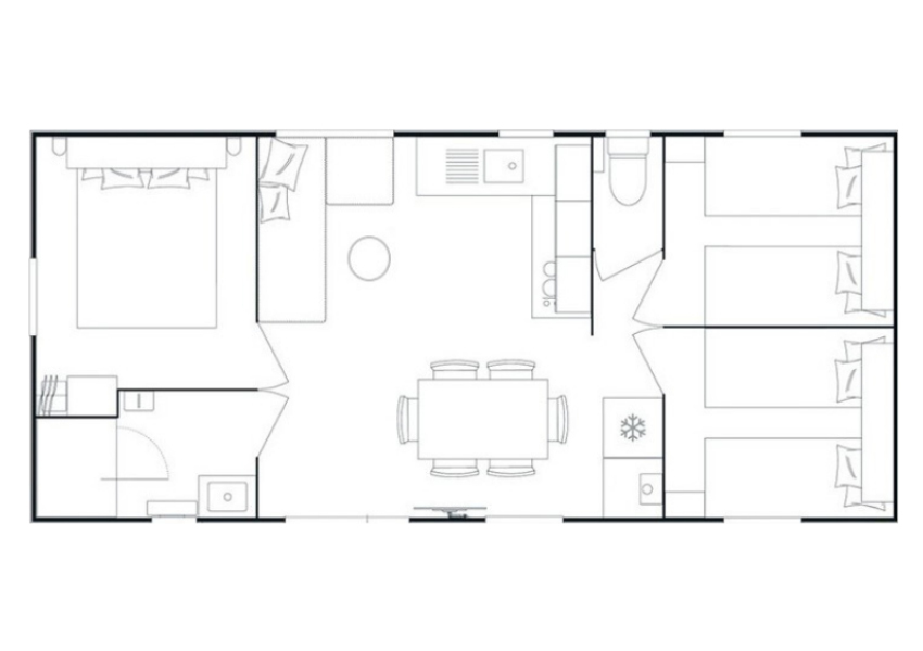
NIRVANA87.3
- Surface 33 m²
- Chambre(s) 3
- Personnes 6
- Longueur / Largeur 8,7 m - 4 m

D’une surface totale de 33 m², on apprécie dans le nirvana 87.3 la composition cuisine/séjour harmonieuse. L’espace salle à manger y est particulièrement lumineux car il se positionne au plus près de la grande baie fixe donnant sur l’extérieur.
- 6 pers. jusqu'à 8 pers. avec canapé convertible
- Modèle livré avec ambiance : Canapé Sélect "latte" + Rideaux couleur "biscuit"
- Un mobil-home à l’implantation tout confort.
- Un espace salle à manger des plus lumineux.
Votre résidence secondaire
tout confort
Par le seul fabricant français à offrir un plafond rampant sur toute la longueur pour plus de volume intérieur et de confort de vie.
Garantie 3 ans sur la structure
avec option extension 2 ans
- 2ème fabricant français
- Une qualité sans compromis : choix des matériaux, process de fabrication
- Une isolation renforcée de série pour une meilleure performance thermique
- Une fiabilité et une longévité : des mobil-homes au-delà de 20 ans
Photos non contractuelles
Équipements extérieurs
Bardage
- Bardage vinyle façade avant couleurs Sand et Lin
- 3 autres faces couleur Sand
- Bardage avec uniquement des lames entières (pas de morceaux)
Toiture
- Toiture bipente
- Panneaux tuilé et gris anthracite
- Gouttières avant et arrière
- Descente de gouttière avant et arrière
AUTRES CARACTÉRISTIQUES
- Menuiseries gris alu
- 1 point d'éclairage en façade avant
- 1 prise électrique avant
Équipements intérieurs
SÉJOUR / PIECE DE VIE
- Ensemble repas avec table à rallonges (102/140 x 95 cm)
- 4 chaises résidentielles + 2 chaises pliantes en bois
- Un canapé en tissu avec un lit convertible intégré
- Une table basse en bois
- Une prise USB-C intégrée
- Un miroir (36 x 110 cm)
- Un convecteur 1 000 W
- Des rideaux occultants
- Un support TV avec cablage
- Un éclairage 100 % LED basse consommation
Pour votre sécurité, nos mobil-homes sont équipés systématiquement d'un détecteur de fumée normalisé
CUISINE ÉQUIPÉE COMPRENANT
- De nombreux rangements dont 3 grands casseroliers avec 3 tiroirs
- Nos meubles de cuisine sont du niveau d'un cuisiniste professionnel avec amortisseurs de fin de course
- Un plan de travail hydrofuge
- Un évier simple cuve en inox avec son mitigeur en inox
- Une plaque de cuisson noir au gaz avec 4 feux et sa crédence de protection
- Une tablette support pour le micro-onde
- Un réfrigérateur-congélateur 2 portes inox
- Une hotte encastrée silver
- 3 prises électriques au-dessus du plan de travail
- Un store vénitien
- Le pré-équipement lave-vaisselle
CHAMBRE PARENTALE
- Une tête de lit
- Un lit double de 140x190 cm
- 2 chevets en bois
- 2 liseuses, une de chaque côté du lit
- 2 prises de courant avec USB en tête de lit
- Un ensemble literie complet avec sommiers à lattes et un matelas (35 kg/m3)
- Un meuble pont au-dessus du lit avec portes
- 2 patères
- Des rideaux occultants
- Un convecteur 500 W
CHAMBRE ENFANTS
- Une tête de lit
- 2 lits enfants de 80x190 cm
- Un ensemble literie complet avec sommiers à lattes et un matelas (35 kg/m3)
- Un chevet amovible en bois
- Un meuble pont au-dessus du lit avec 2 portes
- 2 patères
- 2 prises de courant en tête de lit
- Des rideaux occultants
- Un convecteur 500 W
SALLE DE BAINS
- Une douche 80 x 100 cm
- Une vasque céramique blanche avec mitigeur inox
- Une prise électrique à proximité de la vasque
- Un meuble évier avec porte serviette intégré
- Un miroir (65 x 50 cm)
- Une ventilation motorisée (1 extracteur d'air)
- 2 patères
- Une fenêtre avec vitrage de courtoisie dépoli pour une intimité optimale
WC
- Séparé de la salle de bains
- Cuvette et réservoir en céramique
- Une chasse d'eau double débit 3/6 litres
- Une fenêtre avec vitrage de courtoisie dépoli pour une intimité optimale
AUTRE CARACTÉRISTIQUE
- Chauffe-eau gaz
- Tableau électrique (Schneider) avec connexion rapide sans vissage pour plus de sécurité.